How To Draw A Ceiling Plan

Restaurantimprov Katyhigley Ceiling Plan Interior Ceiling Design Interior Design School

Restaurantimprov Katyhigley Ceiling Plan Interior Ceiling Design Interior Design School

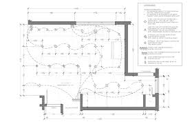
Drafting Sample Reflected Ceiling Plan Ceiling Plan How To Plan Construction Drawings

Drafting Sample Reflected Ceiling Plan Ceiling Plan How To Plan Construction Drawings

Simple Reflected Ceiling Plan With Legend And Switching Ceiling Plan Electrical Layout How To Plan

Simple Reflected Ceiling Plan With Legend And Switching Ceiling Plan Electrical Layout How To Plan

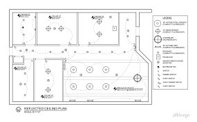
Kitchen Reflected Ceiling Plan Example C 2013 Corey Klassen Ckd Used Under Permission From The National Kitchen Ceiling Plan How To Plan Ceiling Design

Kitchen Reflected Ceiling Plan Example C 2013 Corey Klassen Ckd Used Under Permission From The National Kitchen Ceiling Plan How To Plan Ceiling Design

Courtyard House Buensalido Architects Ceiling Plan How To Plan Ceiling Detail

Courtyard House Buensalido Architects Ceiling Plan How To Plan Ceiling Detail

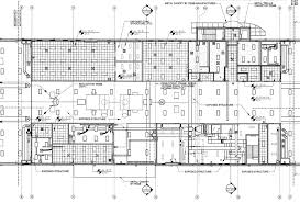
Production Services Wjg Architects Llc Hillsdale Nj Ceiling Plan Ceiling Design Corporate Interiors

Production Services Wjg Architects Llc Hillsdale Nj Ceiling Plan Ceiling Design Corporate Interiors

Production Services Wjg Architects Llc Hillsdale Nj Ceiling Plan Ceiling Design Corporate Interiors

May 6 2015 explore lauren townsend s board reflected ceiling plan drawing followed by 190 people on pinterest.

How to draw a ceiling plan. Flooring plan tiles false ceiling plan panel set scale in autocad ii hindi urdu tutorial duration. Click view tab create panel plan views drop down reflected ceiling plan. Add the miscellaneous prerequisites.

Start in parallel not perspective if you are inside the room and you click and hold down the position camera tool on the floor where you want the section cut then move the cursor along the axis in the direction you want to look when you release it it cuts a section interior elevation. Drag and drop relevant symbols. Bringing in the lights.

Drag relevant symbolsfrom left libraries and drop on the drawing page click. Launch edraw go to the filemenu click new floor plan. Open a blank reflected ceiling plan drawing page.

A reflected ceiling plan rcp is a drawing which shows the items that are located on the ceiling of a room or space. Add dimensions and scale to the reflected ceiling plan. This way the reflected ceiling plan has the same orientation as the floor plan.

In the new rcp dialog select one or more levels for which you want to create a view. A reflected ceiling plan rcp is a drawing that shows which shows the items are located on the ceiling of a room or space. Just drag and drop the reflected ceiling plan shapes you need on the drawing page and rearrange their location as you like then a reflected ceiling plan is finished with just and a few clicks.

Autocad support 14 976 views. If you want to create a plan view for a level that has an existing plan view clear do not duplicate existing views. See more ideas about ceiling plan plan drawing how to plan.

Reflected Ceiling Floor Plans Making Software Ceiling Plan Building Plans Floor Plans

Reflected Ceiling Floor Plans Making Software Ceiling Plan Building Plans Floor Plans

Construction Documents Reflected Ceiling Plan Ceiling Plan Construction Documents How To Plan

Construction Documents Reflected Ceiling Plan Ceiling Plan Construction Documents How To Plan

Bathroom Reflected Ceiling Plan Example C 2013 Corey Klassen Ckd Used Under Permission From The National Kitchen B Ceiling Plan Plan Design Study Design

Bathroom Reflected Ceiling Plan Example C 2013 Corey Klassen Ckd Used Under Permission From The National Kitchen B Ceiling Plan Plan Design Study Design

Preliminary Floor Plans And Reflected Ceiling Plans Ceiling Plan Craftsman Floor Plans Commercial And Office Architecture

Preliminary Floor Plans And Reflected Ceiling Plans Ceiling Plan Craftsman Floor Plans Commercial And Office Architecture

Final Reflected Ceiling Plan Ceiling Plan How To Plan Interior Rendering

Final Reflected Ceiling Plan Ceiling Plan How To Plan Interior Rendering

Source : pinterest.com